西宮市 中古マンション 不動産
ネオコーポ第2武庫川
| 価 格 | 所在地 | 専有面積 | バルコニー面積 | 間取り | 階数 | 築年月 |
|---|---|---|---|---|---|---|
| 1,350万円 | 西宮市上田東町 | 77.67m² | 10.14m² | 5SLDK | 2階部分 | 昭和56年9月 (1981年 9月) |
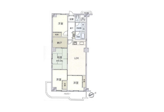
間取り |
外観 |
| 主要採光面:南東 | |
周辺施設
- 鳴尾東保育園徒歩 約3分260m
- 睦幼稚園徒歩 約6分520m
- セブンイレブン徒歩 約7分550m
- マックスバリュ西宮上田町徒歩 約4分260m
- 鳴尾東小学校徒歩 約12分900m
- 鳴尾南中学校徒歩 約9分690m
- 上田東公園徒歩 約2分90m
- ライフォート上田東店徒歩 約7分500m
住宅ローン返済額シミュレーション
| 毎月返済分 | 円 | ボーナス分 | 円 | 年間返済額 | 円 |
|---|
※この計算は概算です。目安としてご覧ください。(元利均等返済方式)
※金融機関の審査により借入額、金利、返済年数が異なります。
※地図上の位置が実際とは異なる場合がございます。
| 交通機関 | 阪神武庫川線「武庫川団地前」駅徒歩4分 | ||
|---|---|---|---|
| 建物構造 | 鉄筋コンクリート | 管理 | 管理員:日勤/管理形態:全部委託 |
| 階数 | 6階建 2階部分 | 管理費 | 月額 8,540円 |
| 主要採光面 | 南東 | 修繕積立金 | 月額 13,200円 |
| 総戸数 | 51戸 | 駐車場 | 空有り(13000円) |
| 土地権利 | 所有権 | 現況 | 空家 |
| 用途地域 | 準工業地域 | 引き渡し | 相談 |
| 建ぺい率/容積率 | 60%/200% | 小学校区 | 鳴尾東小学校 |
| 国土法届出 | 不要 | 中学校区 | 鳴尾南中学校 |
| その他費用 | 専用庭使用料900円/月 | ||
| 最終物確日 | 2025年2月24日 | 情報有効期限 | 2025年3月24日 |
西日本不動産株式会社〒663-8212 TEL : 0798-39-0250 FAX : 0798-39-0251 |
![]() ![]() |








特徴
設備・仕様(キッチン・浴室・洗面・トイレ・その他)