西宮市 中古マンション 不動産
プリオーレ夙川さくら道
| 価 格 | 所在地 | 専有面積 | バルコニー面積 | 間取り | 階数 | 築年月 |
|---|---|---|---|---|---|---|
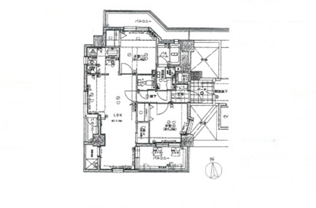
| 3,680万円 | 西宮市神楽町 | 61.80m² | 15.68m² | 2LDK | 5階部分 | 平成9年8月 (1997年 8月) |
間取り |
外観 |
| 主要採光面:北 | |
リフォーム内容
2025年5月 リフォーム済
住宅ローン返済額シミュレーション
| 毎月返済分 | 円 | ボーナス分 | 円 | 年間返済額 | 円 |
|---|
※この計算は概算です。目安としてご覧ください。(元利均等返済方式)
※金融機関の審査により借入額、金利、返済年数が異なります。
※地図上の位置が実際とは異なる場合がございます。
| 交通機関 | JR東海道線「さくら夙川」駅徒歩2分 | ||
|---|---|---|---|
| 建物構造 | 鉄筋コンクリート | 管理 | 管理員:日勤/管理形態:全部委託 |
| 階数 | 9階建 5階部分 | 管理費 | 月額 19,160円 |
| 主要採光面 | 北 | 修繕積立金 | 月額 28,430円 |
| 総戸数 | 14戸 | 駐車場 | 無し |
| 土地権利 | 所有権 | 現況 | 空室 |
| 用途地域 | 第一種住居地域 | 引き渡し | 相談 |
| 建ぺい率/容積率 | 60%/200% | 小学校区 | 香櫨園小学校 |
| 国土法届出 | 不要 | 中学校区 | 浜脇中学校 |
| 最終物確日 | 2025年11月27日 | 情報有効期限 | 2025年12月27日 |
西日本不動産株式会社〒663-8212 TEL : 0798-39-0250 FAX : 0798-39-0251 |
![]() ![]() |














特徴