西宮市 中古戸建て 不動産
苦楽園六番町一戸建て
| 価 格 | 所在地 | 土地面積 | 建物面積 | 間取り | 構造 | 築年月 |
|---|---|---|---|---|---|---|
| 5,580万円 | 西宮市苦楽園六番町 | 261.85m² | 152.07m² | 3LDK | 軽量鉄骨3階建 | 昭和57年12月 (1982年 12月) |
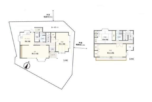
間取り |
外観 |
| 主要採光面:北東 | |
住宅ローン返済額シミュレーション
| 毎月返済分 | 円 | ボーナス分 | 円 | 年間返済額 | 円 |
|---|
※この計算は概算です。目安としてご覧ください。(元利均等返済方式)
※金融機関の審査により借入額、金利、返済年数が異なります。
※地図上の位置が実際とは異なる場合がございます。
| 交通機関 | 阪急神戸線「夙川」駅バス停「苦楽園五番町」徒歩2分 | ||
|---|---|---|---|
| 接道状況 | 角地 (東側5.1m 公道 間口 17.3m) (北側4.0m 公道 間口 15.2m) | ||
| 土地権利 | 所有権 | 建物構造 | 軽量鉄骨 |
| 都市計画 | 市街化区域 | 階数 | 3階建 |
| 用途地域 | 第一種低層住居専用地域 | 間取り | 3LDK |
| 建ぺい率/容積率 | 40%/100% | 主要採光面 | 北東 |
| 地目 | 宅地 | 駐車場 | 有り(車種による) |
| 地勢 | -- | 築年月 | 昭和57年12月(1982年 12月) |
| 私道負担 | 無し | 現況 | 空家 |
| セットバック | -- | 引き渡し | 相談 |
| 他の法令上の制限 | -- | 小学校区 | 苦楽園小学校 |
| 国土法届出 | 不要 | 中学校区 | 苦楽園中学校 |
| 最終物確日 | 2026年2月3日 | 情報有効期限 | 2026年3月3日 |
西日本不動産株式会社〒663-8212 TEL : 0798-39-0250 FAX : 0798-39-0251 |
![]() ![]() |










特徴