西宮市 中古マンション 不動産
アンビエント西宮仁川アールブリーズ
| 価 格 | 所在地 | 専有面積 | バルコニー面積 | 間取り | 階数 | 築年月 |
|---|---|---|---|---|---|---|
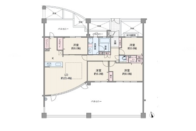
| 4,980万円 | 西宮市段上町6丁目 | 106.27m² | 83.49m² | 4LDK | 5階部分 | 平成15年10月 (2003年 10月) |
間取り |
外観 |
| 主要採光面:南 | |
| ★セールスポイント★ |
|
|---|
リフォーム内容
2025年12月 リフォーム済
周辺施設
- 段上小学校徒歩 約11分880m
- 甲武中学校徒歩 約24分1920m
- 万代仁川店徒歩 約6分450m
- コープ仁川徒歩 約15分1200m
- ローソン徒歩 約5分350m
- かえる公園徒歩 約3分190m
住宅ローン返済額シミュレーション
| 毎月返済分 | 円 | ボーナス分 | 円 | 年間返済額 | 円 |
|---|
※この計算は概算です。目安としてご覧ください。(元利均等返済方式)
※金融機関の審査により借入額、金利、返済年数が異なります。
※地図上の位置が実際とは異なる場合がございます。
| 交通機関 | 阪急今津線「仁川」駅徒歩14分 | ||
|---|---|---|---|
| 建物構造 | 鉄筋コンクリート | 管理 | 管理員:日勤/管理形態:全部委託 |
| 階数 | 5階建 5階部分 | 管理費 | 月額 8,200円 |
| 主要採光面 | 南 | 修繕積立金 | 月額 26,700円 |
| 総戸数 | 47戸 | 駐車場 | 空無し |
| 土地権利 | 所有権 | 現況 | 空室 |
| 用途地域 | 第一種中高層住居専用地域 | 引き渡し | 相談 |
| 建ぺい率/容積率 | 60%/200% | 小学校区 | 段上小学校 |
| 国土法届出 | 不要 | 中学校区 | 甲武中学校 |
| 最終物確日 | 2026年4月26日 | 情報有効期限 | 2026年5月26日 |
西日本不動産株式会社〒663-8212 TEL : 0798-39-0250 FAX : 0798-39-0251 |
![]() ![]() |








特徴
設備・仕様(キッチン・浴室・洗面・トイレ・その他)