西宮市 中古戸建て 不動産
市庭町一戸建て
| 価 格 | 所在地 | 土地面積 | 建物面積 | 間取り | 構造 | 築年月 |
|---|---|---|---|---|---|---|
| 3,480万円 | 西宮市市庭町 | 61.06m² | 83.08m² | 3DK | 木造2階建 | 平成7年12月 (1995年 12月) |
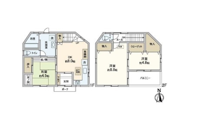
間取り |
外観 |
| 主要採光面:南 | |
周辺施設
- 浜脇小学校徒歩 約7分630m
- 浜脇中学校徒歩 約5分410m
- ダイエー阪神西宮店徒歩 約7分560m
- サンディ香櫨園店徒歩 約6分540m
- エビスタ西宮徒歩 約7分630m
住宅ローン返済額シミュレーション
| 毎月返済分 | 円 | ボーナス分 | 円 | 年間返済額 | 円 |
|---|
※この計算は概算です。目安としてご覧ください。(元利均等返済方式)
※金融機関の審査により借入額、金利、返済年数が異なります。
※地図上の位置が実際とは異なる場合がございます。
| 交通機関 | 阪神本線「香櫨園」駅徒歩5分 | ||
|---|---|---|---|
| 接道状況 | 一方道路 (南側6.2m 公道 間口 8.5m) | ||
| 土地権利 | 所有権 | 建物構造 | 木造 |
| 都市計画 | 市街化区域 | 階数 | 2階建 |
| 用途地域 | 第一種住居地域 | 間取り | 3DK |
| 建ぺい率/容積率 | 60%/200% | 主要採光面 | 南 |
| 地目 | 宅地 | 駐車場 | -- |
| 地勢 | 平坦地 | 築年月 | 平成7年12月(1995年 12月) |
| 私道負担 | 土地面積以外に15.5m2 | 現況 | 空家 |
| セットバック | -- | 引き渡し | 相談 |
| 他の法令上の制限 | -- | 小学校区 | 浜脇小学校 |
| 国土法届出 | 不要 | 中学校区 | 浜脇中学校 |
| 最終物確日 | 2025年12月19日 | 情報有効期限 | 2026年1月19日 |
西日本不動産株式会社〒663-8212 TEL : 0798-39-0250 FAX : 0798-39-0251 |
![]() ![]() |








特徴