西宮市 新築一戸建て 不動産
新築一戸建て上田中町
| 価 格 | 所在地 | 土地面積 | 建物面積 | 間取り | 構造 | 築年月 |
|---|---|---|---|---|---|---|
| 2,980万円 | 西宮市上田中町 | 41.81m² | 72.90m² | 1LDK+2S | 木造3階建 | 新築 (2026年 3月) |
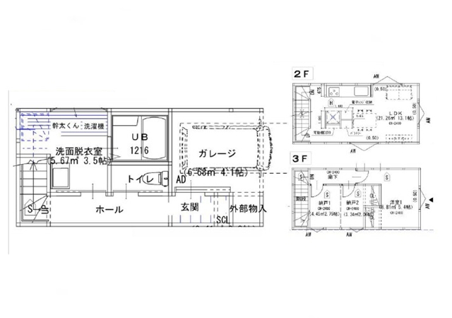
間取り |
外観 |
| 主要採光面:南西 | |
住宅ローン返済額シミュレーション
| 毎月返済分 | 円 | ボーナス分 | 円 | 年間返済額 | 円 |
|---|
※この計算は概算です。目安としてご覧ください。(元利均等返済方式)
※金融機関の審査により借入額、金利、返済年数が異なります。
※地図上の位置が実際とは異なる場合がございます。
| 交通機関 | 阪神武庫川線「武庫川団地前」駅徒歩6分 | ||
|---|---|---|---|
| 接道状況 | 一方道路 (南西側4.0m 私道) | ||
| 土地権利 | 所有権 | 建物構造/階数 | 木造/3階建 |
| 都市計画 | 市街化区域 | 総区画数 | |
| 用途地域 | 第一種住居地域 | 間取り | 1LDK+2S |
| 建ぺい率/容積率 | 60%/200% | 主要採光面 | 南西 |
| 地目 | 宅地 | 駐車場 | 有り |
| 地勢 | 平坦地 | 築年月 | 新築 |
| 私道負担 | 有り5.1m2 | 現況 | 完成済 |
| セットバック | -- | 引き渡し | 相談 |
| 他の法令上の制限 | -- | 小学校区 | 鳴尾東小学校 |
| 国土法届出 | 不要 | 中学校区 | 鳴尾南中学校 |
| 最終物確日 | 2026年4月8日 | 情報有効期限 | 2026年5月8日 |
西日本不動産株式会社〒663-8212 TEL : 0798-39-0250 FAX : 0798-39-0251 |
![]() ![]() |













